Ambassador Sangenjaya|Tokyo real estate investment, Trust Yuzuru Zobe(National Licensed Real Estate Agent)

Ambassador Sangenjaya|Income Properties

Upper floors (6th/7th floors),
three-sided corner room with roof balcony.
3-minute walk from popular Sangenjaya Station.

Ambassador Sangenjaya is a 7-story apartment building completed in March 1979, located in an area east of National Route 246.
Its brick-style tiled exterior gives it a stately appearance.
The neighborhood is surrounded by a shopping district, with the east side facing a public road and a supermarket
and general goods store across the street, making it a convenient location for everyday shopping.
The entrance is set back from the street and has a long approach, making it difficult for outsiders to see in,
creating a sense of privacy.
The piloti corridor has block tile flooring, giving it a clean feel, and the entrance porch is also equipped with downlights,
creating a luxurious space.
Ambassador Sangenjaya has a total of 29 units,
with floor plans ranging from 2DK to 4LDK and floor area ranging from 46.41m² to 84.73m² when sold.
Each floor has 3-5 units, most of which face west, with some units facing east on the second and third floors.
The first-floor units have their own private gardens, allowing residents to enjoy the feeling of living in a detached home,
while maintaining a comfortable distance from neighboring properties.
The property is managed independently, with rooftop waterproofing work carried out in 2003.
Ambassador Sangenjaya is a 3-minute walk from Sangenjaya Station on the Tokyu Denentoshi Line.
Transportation
nearest station
LocationAreaCompletion Date

Sangenjaya On foot 3mins

1-35-22 Sangenjaya, Setagata-ku, Tokyo

Exclusive floor size/46.41㎡

04/1979
Price

JPY64,990,000

Property photos, Floor plan

Property Description

1. Overview

Property Name

Ambassador Sangenjaya

Classification Reinforced concrete・Steel frame reinforced concrete
Tax-included priceJPY64,990,000
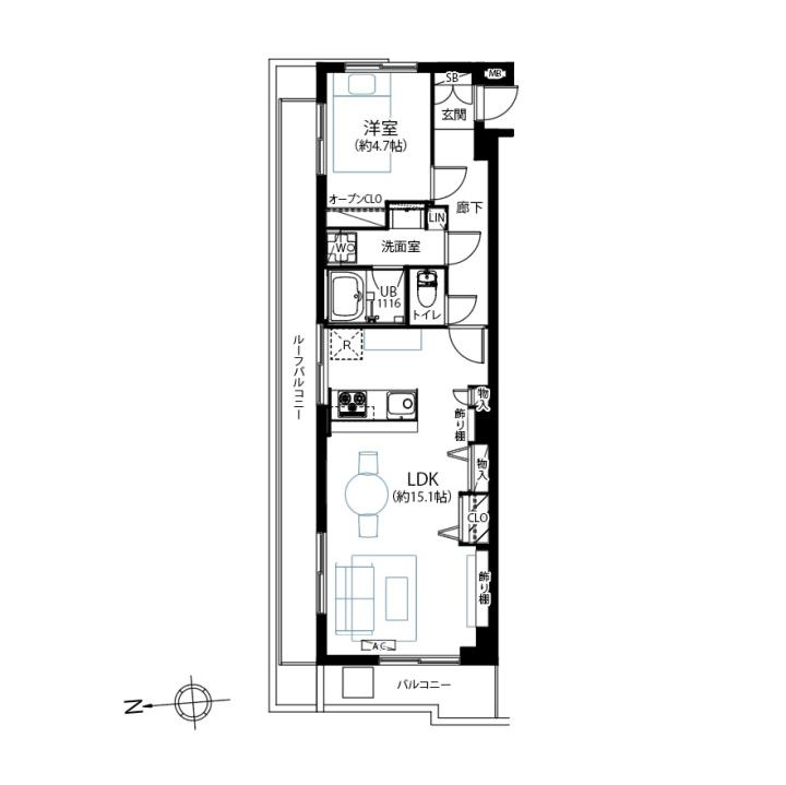
Floor plan details1LDK+Balcony
Floor6/7
Exclusive floor size46.41㎡
Location1-35-22 Sangenjaya, Setagata-ku, Tokyo
Transportation/nearest station

Sangenjaya On foot 3mins

 
Parking No

2. Income

3. Land

Land rights Ownership

4. Building

Type Condominium building
Structure typeReinforced concrete
Completion Date04/1979

5. City planning

Town planning Urbanization zone

6. Other

Monthly Management FeeJPY11,600
Monthly Repair Reserve FundJPY7.720
Current status Vacant
Transfer period Immediately
Transaction terms Intermediary

Access map you can display Street View by dragging the human figure icon on the top left onto the map.

Return the map

Document request・Contact

Please input the required information in the form below, then click the "confirm" button.

Property
Content of inquiry
Name
Phone number
E-mail address
Please enter the same e-mail address again for confirmation
Country/City
When to purchase
RemarksIf you have a preferred method of communication, preferred dates to see properties, desired conditions, questions, etc., please enter them here