Cosmopolis Shinagawa|Income Properties
590 units in a tower apartment
with seismic isolation structure! 29th floor,
southeast corner apartment!
You can see Rainbow Bridge from the balcony
Cosmopolis Shinagawa was completed in February 2005. It is a large community with a total of 590 units. It is a 40-story high-rise tower apartment with a variety of floor plans, from studio to 4LDK. The exterior is simple yet stylish, and the grand entrance makes effective use of water features such as a wall fountain, giving it a luxurious appearance, while the grounds are a lush, green space like a garden. Security measures are in place, including an intercom with a TV monitor, auto-lock, and security cameras, so you can feel safe. The extensive shared facilities, including a guest room, fitness room, cafe lounge, and sky lounge where you can enjoy the night view of the city, will help you upgrade your daily life. Each unit at Cosmopolis Shinagawa is equipped with a motion sensor at the entrance, floor heating and ceiling cassette type air conditioners in the living and dining areas, a ventilator/dryer in the bathroom, and a garbage disposer in the kitchen, all to support your daily life. Cosmopolis Shinagawa is a 10-minute walk from JR Tokaido Main Line Shinagawa Station.
| Transportation nearest station | Location | Area | Completion Date |
|---|---|---|---|
Shinagawa On foot 11mins | 3-6-21 Konan, Minato-ku, Tokyo | Exclusive floor size/90.41㎡ | 02/2005 |
| Price | JPY210,000,000 |
|---|
Property photos, Floor plan
Property Description
1. Overview
| Property Name | Cosmopolis Shinagawa |
|---|
| Classification | Reinforced concrete・Steel frame reinforced concrete |
|---|
| Tax-included price | JPY210,000,000 |
|---|
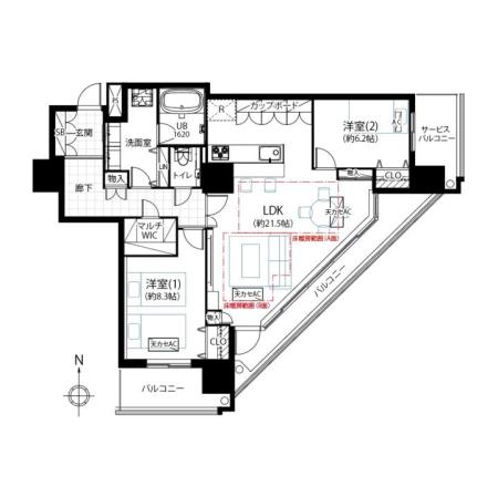
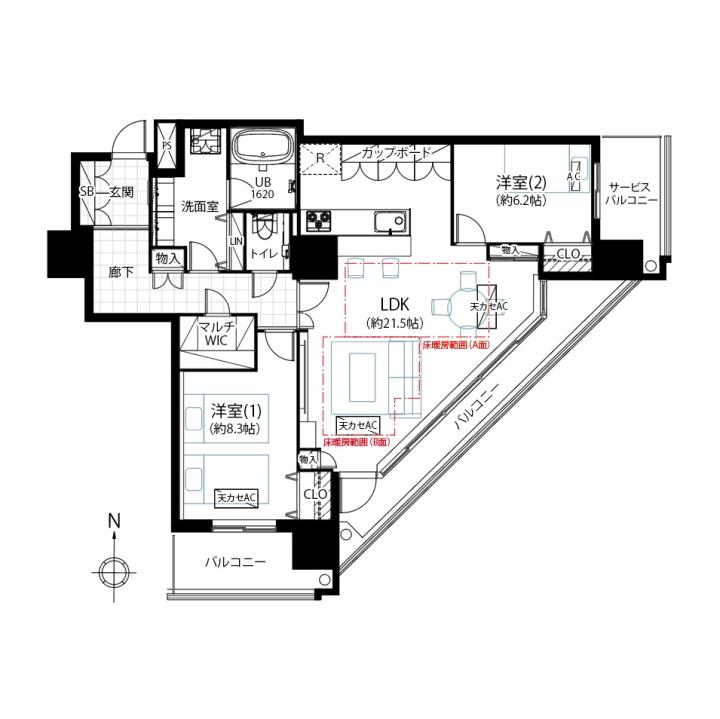
| Floor plan details | 2LDK+Balcony |
|---|
| Floor | 29/40 |
|---|
| Exclusive floor size | 90.41㎡ |
|---|
| Location | 3-6-21 Konan, Minato-ku, Tokyo |
|---|
| Transportation/nearest station | Shinagawa On foot 11mins |
|---|
| Parking | Available |
|---|
2. Income
3. Land
| Land rights | Ownership |
|---|
4. Building
| Type | Condominium building |
|---|
| Structure type | Reinforced concrete |
|---|
| Completion Date | 02/2005 |
|---|
5. City planning
| Town planning | Urbanization zone |
|---|
6. Other
| Monthly Management Fee | JPY17,100 |
|---|
| Monthly Repair Reserve Fund | JPY18,100 |
|---|
| Current status | Vacant |
|---|
| Transfer period | Immediately |
|---|
| Transaction terms | Intermediary |
|---|

























