Seishin Kita Heights|Tokyo real estate investment, Trust Yuzuru Zobe(National Licensed Real Estate Agent)

Seishin Kita Heights|Income Properties

Big community with a total of 823 units.
Wide span balcony on the 12th floor
of high-rise building No. 7.

Seishin Kita Heights is an 8-story apartment building built and sold by Housing and Urban Development Corporation,
and completed in March 1983.
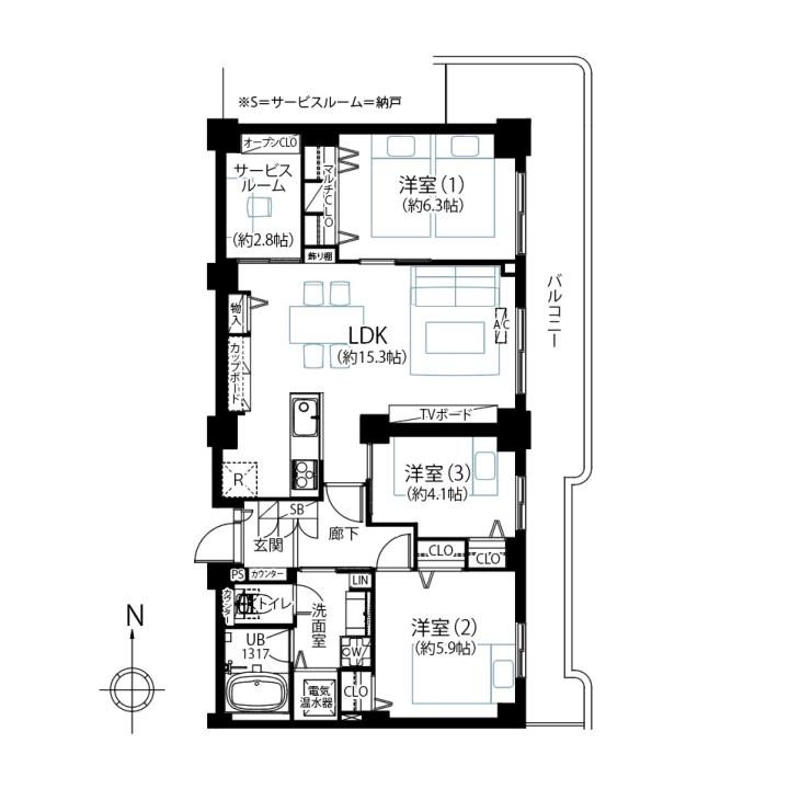
Each unit is equipped with a heating radiator, reheating function, bathroom dryer, and dishwasher.
There is storage space for closets and storage rooms, and the hallways are short,
so the limited space can be used effectively to keep the interior neat and tidy.
There are two openings on the floor plan, making it easy to ensure natural lighting and ventilation.
Seishin Kita Heights' management system includes a patrol system, security cameras,
and an auto-lock at the entrance linked to a monitor-equipped intercom, supporting safety and security for residents.
There is a shopping center and post office on the premises, and an elementary school and junior high school are within a 5-minute walk,
making it a very convenient living environment.
The nearest station is Nishi-Kasai Station on the Tokyo Metro Tozai Line, which is just a 5-minute walk away,
making it convenient for daily commuting to work or school.
Seishin Kita Heights has an exclusive area of ​​99.99 sqm and a floor plan of 4LDK, making it ideal for families.
Transportation
nearest station
LocationAreaCompletion Date

Nishi Kasai On foot 8mins

1-4-7 Seishincho, Edogawa-ku, Tokyo

Exclusive floor size/74.48㎡

08/1984
Price

JPY57,990,000

Property photos, Floor plan

Property Description

1. Overview

Property Name

Seishin Kita Heights

Classification Reinforced concrete・Steel frame reinforced concrete
Tax-included priceJPY57,990,000
Floor plan details3SLDK
Floor12/23
Exclusive floor size74.48㎡
Location1-4-7 Seishincho, Edogawa-ku, Tokyo
Transportation/nearest station

Nishi Kasai On foot 8mins

 
Parking Not available

2. Income

3. Land

Land rights Ownership

4. Building

Type Condominium building
Structure typeSteel frame reinforced concrete
Completion Date08/1984

5. City planning

Town planning Urbanization zone

6. Other

Monthly Management FeeJPY12,600
Monthly Repair Reserve FundJPY11,825
Current status Vacant
Transfer period Immediately
Transaction terms Intermediary
Remarksmonthly community charge JPY2,000

Access map you can display Street View by dragging the human figure icon on the top left onto the map.

Return the map

Document request・Contact

Please input the required information in the form below, then click the "confirm" button.

Property
Content of inquiry
Name
Phone number
E-mail address
Please enter the same e-mail address again for confirmation
Country/City
When to purchase
RemarksIf you have a preferred method of communication, preferred dates to see properties, desired conditions, questions, etc., please enter them here