Omori Park Heights|Tokyo real estate investment, Trust Yuzuru Zobe(National Licensed Real Estate Agent)

Omori Park Heights|Income Properties

Earthquake-resistant,
large-scale apartment building with 217 units.
Access to multiple train lines and stations.

Omori Park Heights was completed in August 1980.
The nearest station is Omori-Kaigan Station on the Keikyu Main Line, just a two-minute walk away,
making it a convenient location for daily commutes to work or school,
as well as for sudden bad weather or late-night commutes home.
Omori Station on the JR Keihin-Tohoku and Negishi lines is also a 13-minute walk from the apartment,
providing access to two stations and two lines.
Omori Park Heights is a 14-story apartment building with a total of 214 units,
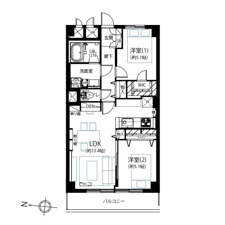
ranging in floor area from 54.00m² to 83.76m² and floor plans ranging from 2LDK to 3LDK, catering to DINKS and families.
The property is managed by a full-time on-site manager,
with a manager's office in the entrance hall to support the safety and security of the residents.
The site is located along the First Keihin Expressway, and is impressive with its brown exterior walls and spacious, stately entrance.
Omori Park Heights completed major repairs to the exterior walls in 2003,
and in 2008 underwent security lighting renovations and air vent repairs, so although the property is old, it is still well-maintained.
Transportation
nearest station
LocationAreaCompletion Date

Omori Kaigan On foot 2mins

2-12-1 Minami Oi, Ota-ku, Tokyo

Exclusive floor size/57.12㎡

08/1980
Price

JPYJPY49,990,000

Property photos, Floor plan

Property Description

1. Overview

Property Name

Omori Park Heights

Classification Reinforced concrete・Steel frame reinforced concrete
Tax-included priceJPYJPY49,990,000
Floor plan details2LDK+Balcony
Floor9/14
Exclusive floor size57.12㎡
Location2-12-1 Minami Oi, Ota-ku, Tokyo
Transportation/nearest station

Omori Kaigan On foot 2mins

Omori On foot 10mins

Parking Available

2. Income

3. Land

Land rights Ownership

4. Building

Type Condominium building
Structure typeSteel frame reinforced concrete
Completion Date08/1980

5. City planning

Town planning Urbanization zone

6. Other

Monthly Management FeeJPY9,200
Monthly Repair Reserve FundJPY10,400
Current status Vacant
Transfer period Immediately
Transaction terms Intermediary

Access map you can display Street View by dragging the human figure icon on the top left onto the map.

Return the map

Document request・Contact

Please input the required information in the form below, then click the "confirm" button.

Property
Content of inquiry
Name
Phone number
E-mail address
Please enter the same e-mail address again for confirmation
Country/City
When to purchase
RemarksIf you have a preferred method of communication, preferred dates to see properties, desired conditions, questions, etc., please enter them here