Grand Tresor Komagata|Tokyo real estate investment, Trust Yuzuru Zobe(National Licensed Real Estate Agent)

Grand Tresor Komagata|Income Properties

Just a 3-minute walk from the nearest station,
Honjo-Azumabashi!
Tokyo Solamachi and Mizumachi are
within living distance.
You can see the Skytree from the balcony
weather permitting).

Grand Tresor Komagata is a 7-story apartment building completed in December 2011,
located in a quiet residential area one street west of Mitsume-dori Street.
The location overlooks the Skytree to the northeast. It is located on a southeast corner lot facing a one-way residential road,
and has a flat parking lot and rack-type bicycle parking on the south side.
The apartment is tiled in two-tone light beige and brown, and the upper floor balconies have glass railings,
giving it a stylish appearance.
The entrance is located on the east side, with a bright and elegant ivory-toned porch,
and the floor is paved with randomly sized natural stone tiles, creating an elegant promenade accented by a symbolic tree.
The approach space from the entrance, which is equipped with an auto-lock with a camera,
alternates between dark brown walls and ivory wavy design walls, and is beautifully lit up with indirect lighting.
Grand Tresor Komagata has a total of 27 units, with floor plans ranging from 1LDK to 3LDK and floor space ranging from 39.79m² to 70.66m²,
offering a wide variety of options.
Abundant plants add color to the areas in front of the first-floor units.
Security cameras are installed in the common areas, and a monitor is also installed in front of the elevator hall on the first floor,
and crime prevention efforts are being carried out in cooperation with a private security company.
Delivery boxes are also available for convenient support in your daily life.
Grand Tresor Komagata is a 4-minute walk from Honjo-Azumabashi Station on the Toei Asakusa Line.
Transportation
nearest station
LocationAreaCompletion Date

Honjo Azumabashi On foot 3mins

3-8-8 Higashi Komagata, Sumida-ku, Tokyo

Exclusive floor size/60.77㎡

12/2011
Price

JPYJPY94,990,000

Property photos, Floor plan

Property Description

1. Overview

Property Name

Grand Tresor Komagata

Classification Reinforced concrete・Steel frame reinforced concrete
Tax-included priceJPYJPY94,990,000
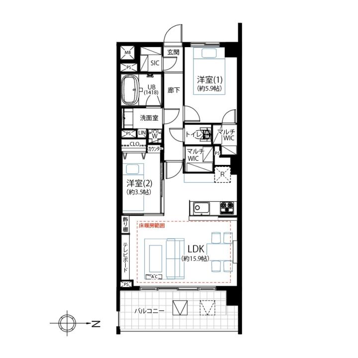
Floor plan details2LDK+Balcony
Floor4/7
Exclusive floor size60.77㎡
Location3-8-8 Higashi Komagata, Sumida-ku, Tokyo
Transportation/nearest station

Honjo Azumabashi On foot 3mins

 
Parking Not available

2. Income

3. Land

Land rights Ownership

4. Building

Type Condominium building
Structure typeReinforced concrete
Completion Date12/2011

5. City planning

Town planning Urbanization zone

6. Other

Monthly Management FeeJPY13,000
Monthly Repair Reserve FundJPY22,800
Current status Vacant
Transfer period Immediately
Transaction terms Intermediary
RemarksMonthly town community charge JPY200

Access map you can display Street View by dragging the human figure icon on the top left onto the map.

Return the map

Document request・Contact

Please input the required information in the form below, then click the "confirm" button.

Property
Content of inquiry
Name
Phone number
E-mail address
Please enter the same e-mail address again for confirmation
Country/City
When to purchase
RemarksIf you have a preferred method of communication, preferred dates to see properties, desired conditions, questions, etc., please enter them here